Beschrijving

Er kunnen geen nieuwe bezichtigingen meer aangevraagd worden voor dit appartement!

Dit mooie en goed afgewerkte appartement ligt in een rustige woonomgeving van Sittard in de wijk Overhoven.  Het appartement is gelegen op de begane grond,  heeft 2 slaapkamers, een tuin en een stenen buitenberging. Het centrum en alle dagelijkse voorzieningen zijn op loop/fietsafstand bereikbaar.

Let op: lees a.u.b. de gehele tekst goed door alvorens te reageren!

Heeft u interesse om dit appartement te huren?

Stuur ons dan uiterlijk zondag  8 maart 2026 een mail met daarin de volgende gegevens/documenten:
Incomplete dossiers worden NIET in behandeling genomen!
- Contactgegevens
- Kopie ID 
- Drie recente salarisstroken + bewijs storting via bankafschrift
- Kopie afschrift bankrekening met hierop te zien de maandelijkse huur /  hypotheekafschrijving van de huidige woonruimte 
- Werkgeversverklaring
- Bewijs van inschrijving in de Gemeentelijke basisadministratie (GBA) 
- Korte profielschets over uzelf + de reden van het zoeken naar een huurwoning

Wij zullen alle aanmeldingen inventariseren en vervolgens enkele kandidaten uitnodigen voor een bezichtiging.
Deze bezichtigingen zullen plaats vinden op donderdag 12 maart.
Hiervan worden de geselecteerde kandidaten uiterlijk aan het begin van week 11 op de hoogte gebracht.

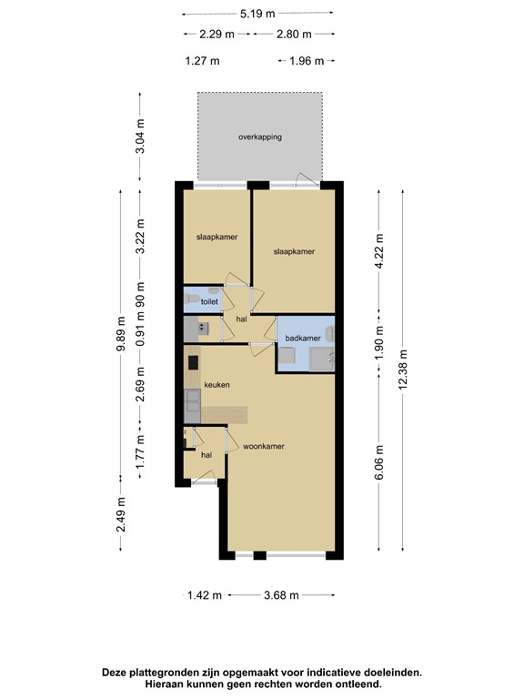
Indeling

BEGANE GROND:
Hal/entree met laminaatvloer, meterkast. 
Sfeervolle living met open moderne keuken geheel afgewerkt met laminaatvloer. 
De keuken is voorzien van de volgende apparatuur ; gaskookplaat, oven, afzuiging, vaatwasser, koelkast. 
Hal vanwaar toegang naar separaat toilet, badkamer en slaapkamers. 
Geheel betegelde moderne badkamer met douchecabine, wastafel meubel en witgoedaansluitingen. 
Twee slaapkamers beiden afgewerkt met laminaatvloer. Vanuit de grootste slaapkamer toegang naar de achtertuin. 

TUIN:
Geheel omsloten onderhoudsvriendelijke tuin met terrasoverkapping en achterom. 

BERGING:
Separate stenen buitenberging.

Bijzonderheden

Instapklaar;
Het appartement is in een zeer rustige wijk op loopafstand van het centrum van Sittard gelegen;
Kunststof kozijnen met HR++ beglazing;
Moderne badkamer; 
Voldoende parkeergelegenheid;
Huisdieren zijn helaas niet toegestaan.

Huurprijs: € 1050- (excl. gas/water/elektra) per maand, inclusief VvE kosten;
Minimale contractduur: 1 jaar;
Beschikbaar per: april 2026

Heeft u interesse om dit appartement te huren?

Stuur ons dan uiterlijk zondag  8 maart 2026 een mail met daarin de volgende gegevens/documenten:
Incomplete dossiers worden NIET in behandeling genomen!
- Contactgegevens
- Kopie ID 
- Drie recente salarisstroken + bewijs storting via bankafschrift
- Kopie afschrift bankrekening met hierop te zien de maandelijkse huur /  hypotheekafschrijving van de huidige woonruimte 
- Werkgeversverklaring
- Bewijs van inschrijving in de Gemeentelijke basisadministratie (GBA) 
- Korte profielschets over uzelf + de reden van het zoeken naar een huurwoning

Wij zullen alle aanmeldingen inventariseren en vervolgens enkele kandidaten uitnodigen voor een bezichtiging.
Deze bezichtigingen zullen plaats vinden op donderdag 12 maart.
Hiervan worden de geselecteerde kandidaten uiterlijk aan het begin van week 11 op de hoogte gebracht.

Deze informatie is met de nodige zorgvuldigheid samengesteld. Hierbij zijn wij deels afhankelijk van informatie die wij van derden ontvangen. Aan onjuistheden en/of onvolkomenheden kunt u echter geen rechten ontlenen. Indien bepaalde informatie voor u van wezenlijk belang is dan adviseren wij u deze op juistheid te controleren. Onzerzijds wordt geen aansprakelijkheid aanvaardt voor enige onvolledigheid, onjuistheid of anderszins, dan wel de gevolgen daarvan.

Kenmerken