Beschrijving

De biedingstermijn voor deze woning sluit op: Woensdag  21 januari om 23.59 uur.

Instapklaar en zorgeloos wonen in Beegden!

Je hoeft alleen je sleutel nog om te draaien om van je nieuwe thuis te genieten. 
Deze keurig onderhouden geschakelde twee-onder-één-kapwoning staat in een rustige, geliefde straat in het hart van Beegden en is ook zeer geschikt voor starters die zoeken naar comfort en gemak. Daarnaast ligt er natuur en watergebied om de hoek.

Indeling

Begane grond:
De woning heeft een frisse uitstraling en biedt op de begane grond een lichte en sfeervolle woon-/eetkamer, met open verbinding naar een smaakvolle, moderne keuken. De apparatuur; inductiekookplaat, afzuigkap, koelkast, combi-oven en een vaatwasser met Home Connect.
Over de gehele begane grond ligt een laminaatvloer. In de woonkamer hangt een split-unit airco/warmtepomp (2021), waarmee je in elk seizoen de temperatuur eenvoudig regelt.

Tuin + garage:
Vanuit de keuken loop je zo de onderhoudsarme, volledig beklinkerde tuin in met veel privacy, een heerlijke plek. Daarnaast is de tuin voorzien van een elektrisch bedienbaar zonnescherm, zodat je op zonnige dagen heerlijk in de schaduw kunt zitten.
Naast de woning ligt de (na)geïsoleerde garage, ook prima te gebruiken als bergruimte of hobbyruimte, waar ook de aansluitingen voor wasmachine en droger zitten.

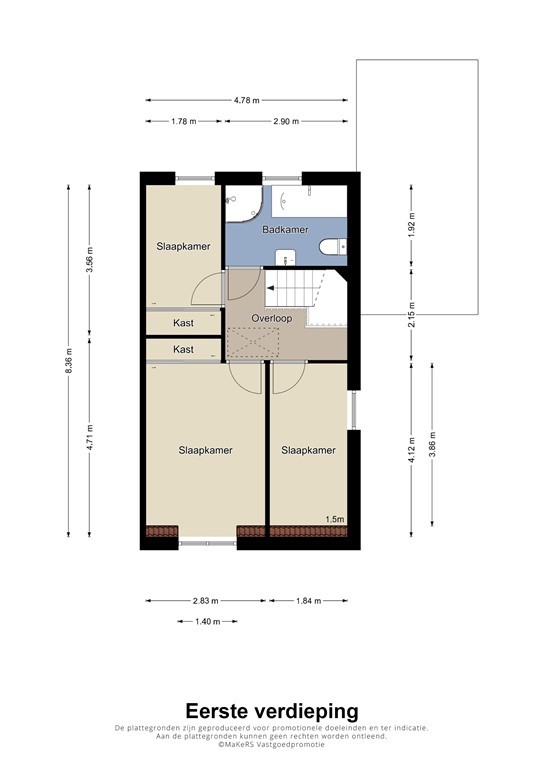
Eerste verdieping:
Lichte overloop, drie slaapkamers (twee met handige inbouwkasten) en een keurige, volledig betegelde badkamer met douche, ligbad, was meubel, designradiator en tweede toilet. Ook op deze verdieping zie je een moderne laminaatvloer terug. In de overloop hangt een split-unit airco/warmtepomp (2020) waarmee je in elk seizoen de temperatuur eenvoudig regelt. De ramen zijn voorzien van rolluiken. 

Tweede verdieping:
Via een vlizotrap bereik je de praktische bergzolder met cv-installatie en mechanische ventilatie. 
Door een vaste trap, dakraam of dakkapel te plaatsen, maak je hier eenvoudig een vierde slaapkamer, werkplek of hobbykamer van.

Bijzonderheden

Bijzonderheden:
Alles binnen handbereik
Het is prettig wonen in Beegden: boodschappen doe je op een paar minuten rijden bij de supermarkt, de basisschool en een middelbare school zijn makkelijk bereikbaar. Daarnaast liggen sportclubs en speeltuinen dichtbij. Binnen 5–10 minuten rijd je naar de uitvalswegen richting Eindhoven, Maastricht, Roermond of Venlo.
In Beegden zelf vind je gezellige horeca, lokale winkeltjes én eindeloze wandel- en fietsroutes langs de Maasplassen, door de heide en langs het bos. Openbaar vervoer is nabij en de omgeving ademt dorpse rust, maar biedt tegelijk aansluiting op grotere dorpen en steden.

Duurzaamheid
Energielabel A: lage maandlasten en energiezuinig wonen.
kunststof raamkozijnen en HR+-glas.
20 zonnepanelen met optimizers en een Solaredge-omvormer (2020–2024) voor eigen opgewekte stroom.
Airco-splitunits/warmtepompen (2020/2021) zorgen voor efficiënte klimaatbeheersing met een laag energieverbruik.
Voorbereiding voor laadvoorziening: de woning is al voorbereid op de installatie van een oplaadpunt voor je (elektrische) auto.

Kortom: of je nu net komt kijken op de woningmarkt of een volgende stap zet: deze instapklare twee-onder-een-kapwoning in Beegden biedt ruimte, comfort en een gunstige ligging. Een fijne basis voor de toekomst!

Deze verkoopinformatie is met de nodige zorgvuldigheid samengesteld. Hierbij zijn wij deels afhankelijk van informatie die wij van derden ontvangen. Aan onjuistheden en/of onvolkomenheden kunt u echter geen rechten ontlenen. Indien bepaalde informatie voor u van wezenlijk belang is dan adviseren wij u deze op juistheid te controleren. Onzerzijds wordt geen aansprakelijkheid aanvaardt voor enige onvolledigheid, onjuistheid of anderszins, dan wel de gevolgen daarvan.

Koper is te allen tijde gerechtigd voor eigen rekening een bouwkundige keuring te (laten) verrichten dan wel andere adviseurs te raadplegen teneinde een goed inzicht te verkrijgen over de staat van onderhoud.

Kenmerken