Beschrijving

De biedingstermijn voor deze woning sluit op: maandag 9 maart om 23.59 uur.

Heerlijk rustig wonen omringd door groen en op loopafstand van het water gelegen. Ben jij op zoek naar rust, ruimte maar toch dichtbij alle dagelijkse voorzieningen?
Kom dan zeker een kijkje nemen in deze mooie woning.

Een sfeervolle woon-eetkamer met een heerlijke lichte tuinkamer in het verlengde, 3 slaapkamers waarvan 1 op de begane grond en (mogelijkheid om een badkamer te realiseren op de begane grond)  maken deze woning bijzonder geschikt voor gezinnen maar ook voor senioren.
De woning is keurig onderhouden en met recht instapklaar te noemen.
De woning is heerlijk rustig en landelijk gelegen. Toch ben je binnen 10 minuten op de A2 en de N273.

Indeling

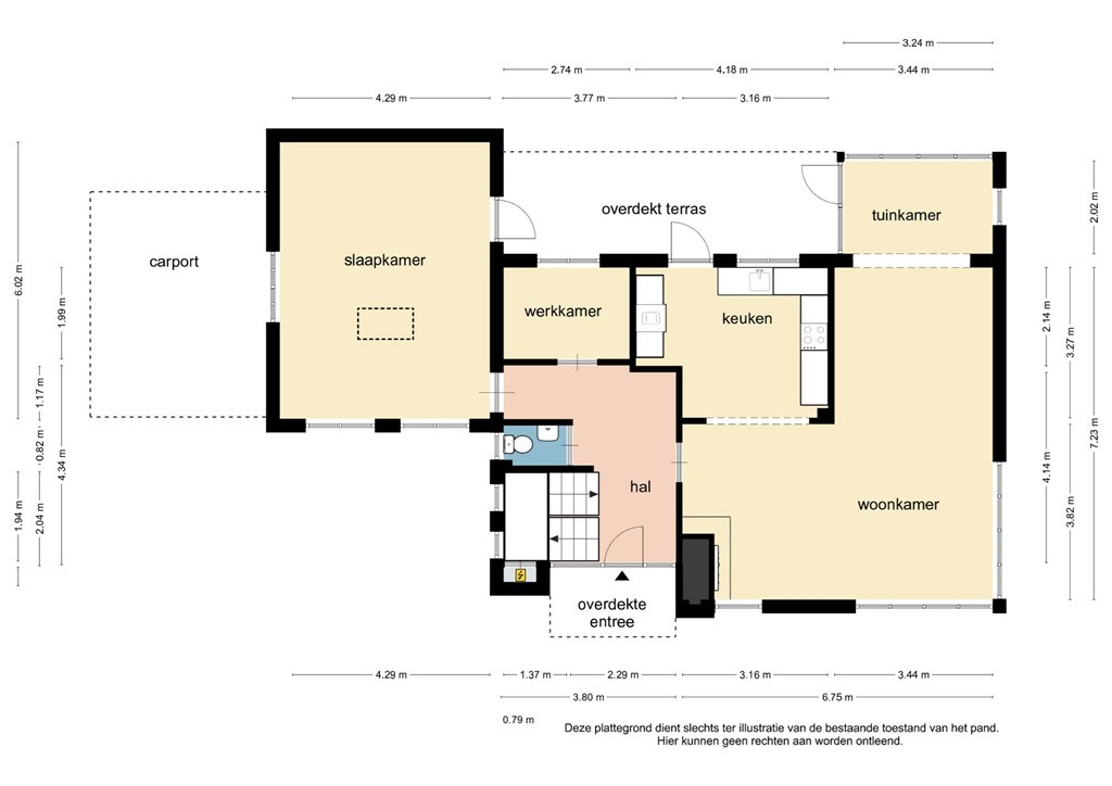
Begane grond:
Overdekte entree, ruime hal, meterkast, toilet met fonteintje en een prachtige open trapopgang naar de 1e verdieping.
Riante slaapkamer (momenteel in gebruik als hobby-/werkruimte). Middels een vlizotrap boven de slaapkamer is een ruime berging toegankelijk. De naastgelegen ruimte die momenteel in gebruik is als werkkamer zou ook kunnen dienen als badkamer. 

Sfeervolle woon/eetkamer met als eyecatcher de open haard. In de woonkamer is een airco-unit aanwezig. In het verlengde van de woonkamer bevindt zich de tuinkamer die gekenmerkt wordt door veel lichtinval en waar het heerlijk vertoeven is.
De woonkamer is voorzien van een eikenhouten vloer. 
Halfopen keuken welke voorzien is van de volgende inbouwapparatuur: inductiekookplaat, afzuigkap, vaatwasser, oven, koelkast en diepvries.
Zowel vanuit de keuken, tuinkamer als de slaapkamer op de begane grond is er toegang tot de tuin mogelijk.

Tuin:
Keurig onderhouden tuin rondom.
De tuin is grotendeels betegeld en voorzien van een overdekt terras en diverse borders met beplanting. In de tuin bevindt zich een separate houten berging. Naast de woning bevindt zich een oprit welke plaats biedt voor meerdere voertuigen. Ook is deze voorzien van een carport.

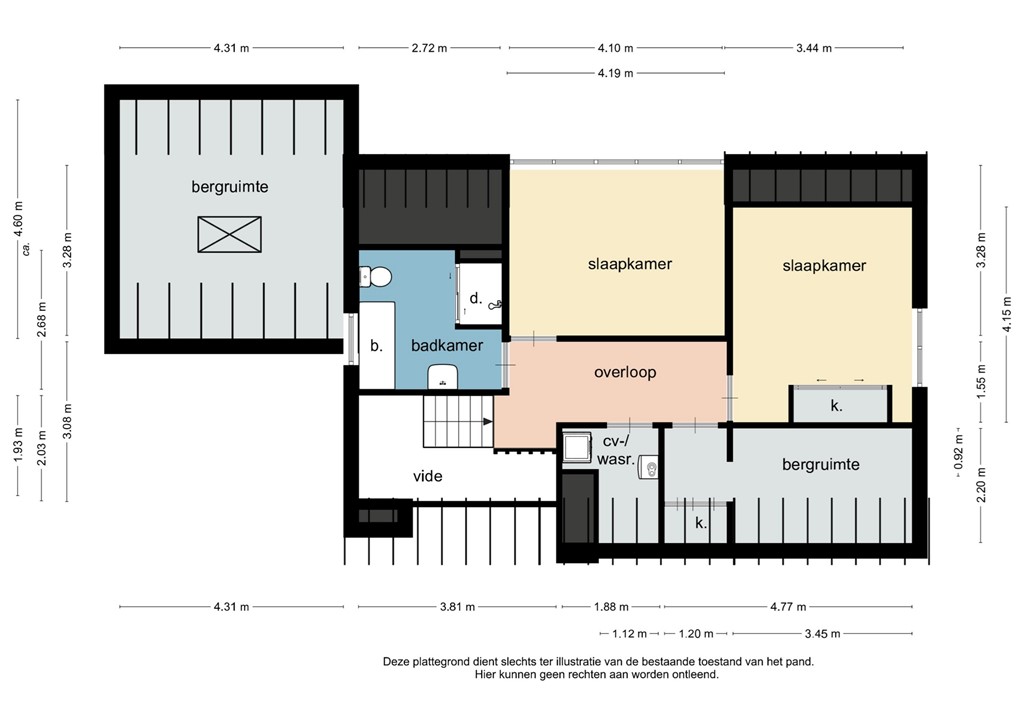
1e verdieping:
Vide, overloop, 2 slaapkamers, Cv/wasruimte, royale berging en de badkamer. Op 1 slaapkamer bevindt zich een airco-unit. De badkamer is voorzien van een ligbad, douche, wastafel met opbergmeubel, designradiator en een toilet.

Bijzonderheden

Instapklaar;
Heerlijk rustige doch centrale ligging;
De gehele woning is voorzien van grote raampartijen waarbij je optimaal kunt genieten van veel lichtinval;
Voorzien van energielabel B;
Keuken, hal en badkamer zijn voorzien van vloerverwarming; 
Laadpaal aanwezig;
Voorzien van hardhouten kozijnen met dubbel glas;
De woning beschikt over 22 zonnepanelen / eigendom / 2022;
Cv-installatie: Nefit / eigendom / 2016;
Airco woonkamer: 2022 / eigendom;
Airco slaapkamer: 2018 / eigendom;
De woning is zowel van binnen als buiten beveiligd.

Deze verkoopinformatie is met de nodige zorgvuldigheid samengesteld. Hierbij zijn wij deels afhankelijk van informatie die wij van derden ontvangen. Aan onjuistheden en/of onvolkomenheden kunt u echter geen rechten ontlenen. Indien bepaalde informatie voor u van wezenlijk belang is dan adviseren wij u deze op juistheid te controleren. Onzerzijds wordt geen aansprakelijkheid aanvaardt voor enige onvolledigheid, onjuistheid of anderszins, dan wel de gevolgen daarvan.

Koper is te allen tijde gerechtigd voor eigen rekening een bouwkundige keuring te (laten) verrichten dan wel andere adviseurs te raadplegen teneinde een goed inzicht te verkrijgen over de staat van onderhoud.

Kenmerken