Beschrijving

De biedingstermijn voor deze woning sluit op zondag 1 maart om 23.59 uur.

Heerlijk rustig wonen maar toch dicht in de buurt bij alle dagelijkse voorzieningen. Binnen 5 minuten bent u zowel in het centrum van Born of Limbrichterveld. Ook het centrum van Sittard is heerlijk per fiets toegankelijk. De ligging is centraal t.o.v. sportvoorzieningen, (basis) scholen, kinderopvang. Ook de belangrijkste uitvalswegen zijn snel toegankelijk. Limbricht is DE ideale uitvalsbasis.

Is jouw interesse ook gewekt? Kom dan zeker kijken bij deze netjes onderhouden geschakelde twee-onder-een-kapwoning. De woning biedt verrassend veel ruimte met o.a. 4 slaapkamers, een lichte woonkamer met in het verlengde een fijne serre, veel bergruimte en een heerlijke tuin.

Indeling

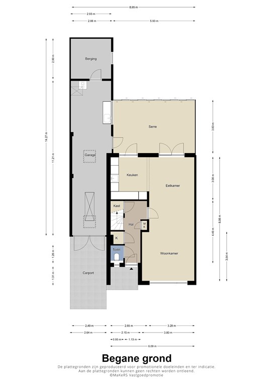
Begane grond:
Overdekte entree, hal met meterkast, 2 bergkasten en een toilet.
Lichte woon-eetkamer voorzien van een tegelvloer. In de woonkamer bevindt zich een airco-unit.
Halfopen keuken welke voorzien is van de volgende inbouwapparatuur: inductiekookplaat, afzuigkap, oven en een vaatwasser. Daarnaast is er voldoende opbergmogelijk beschikbaar in de keuken. In de keuken bevindt zich een elektrische boiler. 
In het verlengde van de woonkamer/keuken bevindt zich de serre alwaar het gehele jaar mede door de aanwezigheid van de glazen schuifwanden heerlijk vertoeven is.

Vanuit de serre is de garage bereikbaar. Hier bevindt zich een eenvoudig keukenblok. Ook zijn hier de aansluitpunten voor de wasmachine/wasdroger. Middels een vlizotrap is de bovengelegen vliering toegankelijk. Aan de achterzijde bevindt zich nog een extra bergruimte.
Aan de voorzijde van de garage bevindt zich de oprit met carport welke toegang biedt voor 2 voertuigen.

Tuin:
De volledig ommuurde tuin is keurig aangelegd en voorzien van een serre met glazen schuifwand. Achter in de tuin bevindt zich een terras met  overkapping en aan beide zijden borders met beplanting.

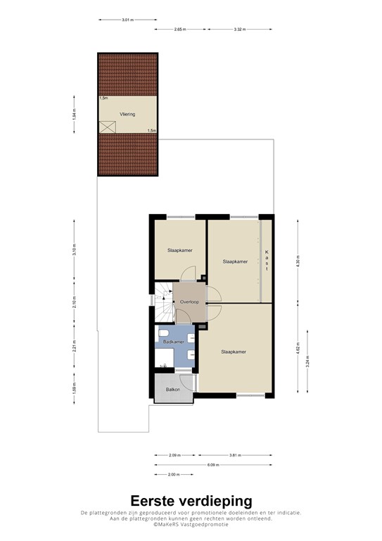
1e verdieping:
Overloop, 3 slaapkamers (waarvan 1 slaapkamer met toegang tot een balkon aan de voorzijde). 1 slaapkamer is voorzien van een vaste kastenwand. De slaapkamer aan de voorzijde is voorzien van een airco-unit. 
De moderne badkamer is voorzien van een douchecabine , twee wastafels met opbergmeubel en een toilet. Op 2 slaapkamers en de badkamer bevinden zich elektrische panelen.

2e verdieping:
Middels een vaste trap is de zolder bereikbaar. De zolder is opgesplitst in 2 delen. Een deel bestaat uit 2 separate bergingen. Hier bevindt zich tevens de opstelplaats van de Cv-installatie. Middels een toegangsdeur is de ruime 4e slaapkamer bereikbaar. Deze kamer is voorzien van een dakraam.

Bijzonderheden

Voorzien van energielabel B;
Voorzien van een warmtepomp boiler voor warm water / eigendom / 2025 / Aristo;
Voorzien van een elektrische boiler in de keuken / eigendom;
Voorzien van 2 airco’s / woonkamer en slaapkamer / eigendom / 2024 / Mitsubishi;
De gang, woonkamer en de keuken beschikken over vloerverwarming; 
Voorzien van kunststof kozijnen met HR glas;
De woning is deels voorzien van rolluiken;
De woning beschikt over 28 zonnepanelen / eigendom / 2012 (achterzijde) en 2023 (voorzijde);
Op de badkamer en 2 slaapkamers bevinden zich elektrische panelen;
Cv installatie: 2025 / eigendom / elektrisch.

Deze verkoopinformatie is met de nodige zorgvuldigheid samengesteld. Hierbij zijn wij deels afhankelijk van informatie die wij van derden ontvangen. Aan onjuistheden en/of onvolkomenheden kunt u echter geen rechten ontlenen. Indien bepaalde informatie voor u van wezenlijk belang is dan adviseren wij u deze op juistheid te controleren. Onzerzijds wordt geen aansprakelijkheid aanvaardt voor enige onvolledigheid, onjuistheid of anderszins, dan wel de gevolgen daarvan.

Koper is te allen tijde gerechtigd voor eigen rekening een bouwkundige keuring te (laten) verrichten dan wel andere adviseurs te raadplegen teneinde een goed inzicht te verkrijgen over de staat van onderhoud.

Kenmerken