Beschrijving
Keurig onderhouden en royaal uitgebouwde hoekwoning.
Met o.a. 4 slaapkamers, een keurig onderhouden tuin met een fraaie overkapping en veel leefruimte is dit de ideale woning voor een gezin.
De woning heeft een gunstige ligging t.o.v. winkels, scholen/opvang en sportvoorzieningen.
Binnen 5 minuten zijn de directe uitvalswegen (A2 of de A73) toegankelijk.
Indeling
Souterrain:
Provisiekelder
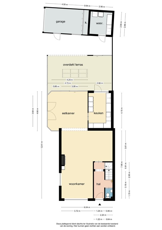
Begane grond:
Hal/entree, meterkast, toilet met fonteintje.
L-vormige woonkamer (met airco-unit), voorzien van een open haard. In het verlengde bevindt zich de lichte eetkamer. Vanuit de eetkamer is de gesloten keuken bereikbaar. De keuken is zeer degelijk en voorzien van de volgende inbouwapparaat: inductiekookplaat, afzuigkap, vaatwasser, 2 (combi)ovens en een inbouw koffiemachine, koelkast en diepvries.
Zowel vanuit de keuken als vanuit de eetkamer (middels schuifpui), is de prachtige geïsoleerde overkapping/overdekt terras (welke voorzien is van een lichtstraat), bereikbaar.
Door de zeilen die open/dichtgemaakt kunnen worden, is het hier het gehele jaar door heerlijk vertoeven.
Tuin:
De tuin is onderhoudsvriendelijk aangelegd, volledig betegeld en voorzien van enkele sfeervolle boompjes.
In de tuin bevindt zich een separate houten berging.
Aan de achterzijde bevindt zich een separate stenen berging/bijkeuken alwaar zich de aansluitpunten voor de wasmachine/wasdroger bevinden.
Aan de voorzijde bevindt zich de garage. Deze is voorzien van een sectionaalpoort.
1e verdieping:
Overloop, 3 slaapkamers waarvan 2 slaapkamers voorzien zijn van een bergkast en de badkamer.
De badkamer is voorzien van een wastafel met opbergmeubel, een ligbad, en douche en een toilet.
2e verdieping:
Middels een vaste trap is de 2everdieping bereikbaar.
Hier bevindt zich de overloop, berging, cv ruimte en de royale 4e slaapkamer (voorzien van dakkapel)
Bijzonderheden
Centraal maar toch rustig gelegen;
Voorzien van energielabel A;
Perfect geïsoleerd;
Voorzien van 28 zonnepanelen / eigendom / Dmegc;
De gehele begane grond is voorzien van vloerverwarming;
De woning beschikt over kunststof kozijnen met HR +++ glas / 2023;
Voorzien van 3 airco units (elke verdieping) / eigendom / LG / 2020;
Voorzien van gevelisolatie, dakisolatie en vloerisolatie;
Cv-installatie: Nefit HR combi / eigendom / 2018;
De woning is voorzien van rolluiken;
Laadpaal aanwezig;
De buurt zal in 2027 geheel gerenoveerd worden (zie blauwdruk).
Deze verkoopinformatie is met de nodige zorgvuldigheid samengesteld. Hierbij zijn wij deels afhankelijk van informatie die wij van derden ontvangen. Aan onjuistheden en/of onvolkomenheden kunt u echter geen rechten ontlenen. Indien bepaalde informatie voor u van wezenlijk belang is dan adviseren wij u deze op juistheid te controleren. Onzerzijds wordt geen aansprakelijkheid aanvaardt voor enige onvolledigheid, onjuistheid of anderszins, dan wel de gevolgen daarvan.
Koper is te allen tijde gerechtigd voor eigen rekening een bouwkundige keuring te (laten) verrichten dan wel andere adviseurs te raadplegen teneinde een goed inzicht te verkrijgen over de staat van onderhoud.
Plattegronden
kruchterstraat 41 maasbracht 2D BG.jpg
kruchterstraat 41 maasbracht 3D BG.jpg
kruchterstraat 41 maasbracht 2D verd.jpg
kruchterstraat 41 maasbracht 3D verd.jpg
kruchterstraat 41 maasbracht 2D zold.jpg
kruchterstraat 41 maasbracht 3D zold.jpg
kruchterstraat 41 maasbracht 2D keld.jpg
kruchterstraat 41 maasbracht 3D keld.jpg