Beschrijving
De biedingstermijn voor deze woning sluit op: Woensdag 5 november om 23.59 uur.
Wegens de grote hoeveelheid aanvragen is het helaas niet meer mogelijk een bezichtiging voor deze woning in te plannen.
Indien u graag op de reservelijst geplaatst wenst te worden, kunt u ons een mail sturen met uw gegevens!
In de buurt “Roermondse Veld’‘ te Roermond is deze gezellige levensloopbestendige “twee-onder-een-kapwoning” gelegen. De woning biedt o.a. 2 (mogelijk 3) slaapkamers (waarvan 1 op de begane grond met badkamer), een fijne tuin met overkapping en een riante garage/hobbyruimte.
De woning is in een kindvriendelijke wijk gelegen met aan de overzijde van de straat een speelveld. Het centrum, scholen en de directe uitvalswegen zijn snel toegankelijk.
Indeling
Souterrain
Provisiekelder
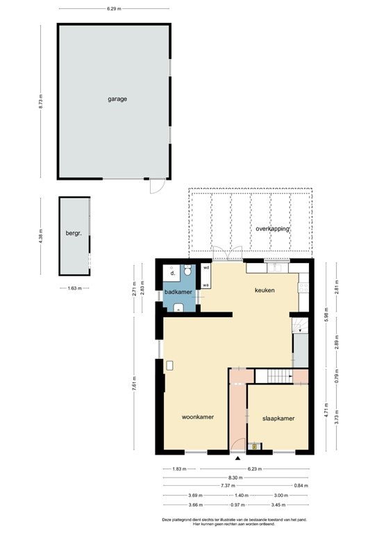
Begane grond:
Entree/hal
Slaapkamer aan de voorzijde alwaar ook de meterkast zich bevindt.
De ruime en lichte woonkamer is speels ingedeeld en voorzien van een tegelvloer. In de woonkamer bevinden zich zowel een pellet kachel als een airco-unit. In het verlengde van de woonkamer bevindt zich de eetkamer.
Open keuken voorzien van diverse inbouwapparatuur waaronder een inductie kookplaat, afzuigkap, vaatwasser en een combi-oven.
In de keuken bevindt zich tevens een ombouw met de wasmachine/wasdroger.
Badkamer voorzien van een inloopdouche, wastafel met opbergmeubel en een zwevend toilet.
Vanuit de keuken is de tuin (middels openslaande deuren) bereikbaar.
Tuin:
Volledige omsloten, ruime achtertuin.
De tuin is grotendeels betegeld en voorzien van een overkapping.
In de tuin is een separate berging gelegen en aan de achterzijde een riante garage/hobbyruimte.
Eerste verdieping:
Toegang tot de 2e slaapkamer (voorzien van een airco-unit. (3e slaapkamer s hier gemakkelijk te creëren).
Hier zijn al de nodige voorbereidingen getroffen (afwerking dient nog gedaan te worden), middels het plaatsen van een riante dakkapel en de aanleg van leidingwerk met het oog op een 2e badkamer.
Bijzonderheden
Fijne centrale toch rustige ligging;
Voorzien van energielabel A;
Voorzien van deels hout/deels kunststof kozijnen met grotendeels dubbel glas;
Het dak op de woning is vernieuwd en geïsoleerd;
Deels voorzien van rolluiken;
Voorzien van een elektrische boiler / Wahlbach / 2022;
Pelletkachel / K-Stove / 2022;
Airco installatie boven/ Mitsubishi / 2023 / eigendom;
Airco installatie beneden / Aux / 2020 / eigendom;
Voorzien van 32 zonnepanelen waarvan 20 in eigendom zijn en 12 gehuurd worden via Hallo Stroom. De maandelijkse kosten hiervoor bedragen € 101,-.
Het huurcontract van de zonnepanelen kan worden overgenomen of afgekocht worden (afkoopsom ca. € 11,750) door koper.
Grote garage/berging voor multifunctioneel gebruik.
Deze verkoopinformatie is met de nodige zorgvuldigheid samengesteld. Hierbij zijn wij deels afhankelijk van informatie die wij van derden ontvangen. Aan onjuistheden en/of onvolkomenheden kunt u echter geen rechten ontlenen. Indien bepaalde informatie voor u van wezenlijk belang is dan adviseren wij u deze op juistheid te controleren. Onzerzijds wordt geen aansprakelijkheid aanvaardt voor enige onvolledigheid, onjuistheid of anderszins, dan wel de gevolgen daarvan.
Koper is te allen tijde gerechtigd voor eigen rekening een bouwkundige keuring te (laten) verrichten dan wel andere adviseurs te raadplegen teneinde een goed inzicht te verkrijgen over de staat van onderhoud.
Plattegronden
gebroek 32 roermond 2D keld.jpg
gebroek 32 roermond 3D keld.jpg
gebroek 32 roermond 2D BG.jpg
gebroek 32 roermond 3D BG.jpg
gebroek 32 roermond 2D verd.jpg
gebroek 32 roermond 3D verd.jpg