Beschrijving
In een mooie, rustige omgeving in “Geleen Zuid’ is deze riante bungalow gelegen.
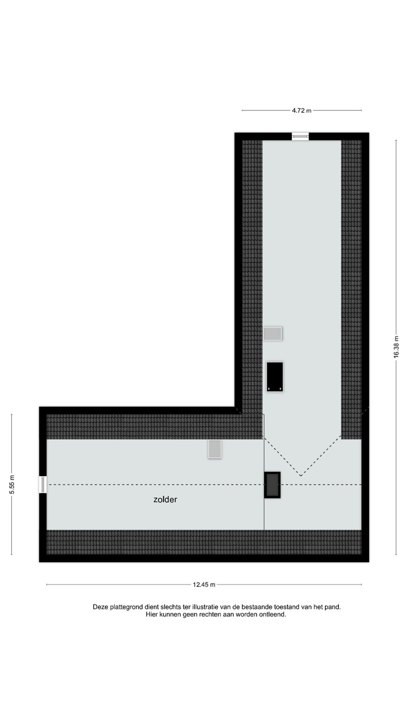
De woning beschikt o.a. over 5 slaapkamers een souterrain met een grote garage, wasruimte en meerdere multifunctionele ruimtes alsmede een ruime bergzolder.
De woning is voorzien van veel lichtinval en optimale privacy.
Diverse voorzieningen waaronder winkelcentrum Zuidhof, sportfaciliteiten en een basisschool zijn op loop/fietsafstand gelegen. Ook de A2/A76 is binnen enkele minuten bereikbaar.
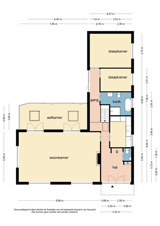
Indeling
Souterrain
Gang, diverse ruimten die nu o.a. in gebruik zijn als slaapkamer. CV/wasruimte met aansluitingen voor de wasmachine/wasdroger. Grote inpandige garage voorzien van een sectionaalpoort.
Begane grond
Hal, meterkast en toiletruimte met een modern zwevend toilet met fonteintje.
Via de ruime hal/entree heeft u toegang tot diverse vertrekken.
Sfeervolle woonkamer voorzien van grote raampartijen. De woonkamer is voorzien van openslaande deuren naar de aansluitend gelegen serre/eetkamer. In de eetkamer bevinden zich tevens 2 grote lichtkoepels voor extra daglichtinval. Middels een schuifpui is de tuin bereikbaar.
Gesloten keuken welke voorzien is van de volgende inbouwapparatuur: oven, magnetron, inductiekookplaat, afzuigkap, koelkast en een vaatwasser.
Moderne badkamer voorzien van een inloopdouche, ligbad, wastafel met opbergmeubel, designradiator en een toilet. Ook bevinden zich op de begane grond 2 slaapkamers.
Tuin
Geheel omsloten tuin welke voorzien is van een verhoogd terras en meerdere borders met beplanting. In de tuin bevindt zich een separate tuinberging. De tuin is tevens toegankelijk middels een achterom.
Aan de zijkant van de woning is de oprit gelegen, welke plaats biedt voor meerdere voertuigen.
Bijzonderheden
Prachtige ligging;
Centrale locatie dichtbij alle voorzieningen;
Voorzien van deels kunststof / deels houten kozijnen met HR ++ glas;
De woning is deels voorzien van rolluiken;
Beschikt over 10 zonnepanelen / Ureco / Eigendom / 2023;
Cv-installatie: Remeha Avanta ACE 28c / eigendom / 2023.
Deze verkoopinformatie is met de nodige zorgvuldigheid samengesteld. Hierbij zijn wij deels afhankelijk van informatie die wij van derden ontvangen. Aan onjuistheden en/of onvolkomenheden kunt u echter geen rechten ontlenen. Indien bepaalde informatie voor u van wezenlijk belang is dan adviseren wij u deze op juistheid te controleren. Onzerzijds wordt geen aansprakelijkheid aanvaardt voor enige onvolledigheid, onjuistheid of anderszins, dan wel de gevolgen daarvan.
Koper is te allen tijde gerechtigd voor eigen rekening een bouwkundige keuring te (laten) verrichten dan wel andere adviseurs te raadplegen teneinde een goed inzicht te verkrijgen over de staat van onderhoud.