Beschrijving
Nieuwbouwappartementen ‘Le Chasseur’ te Pey-Echt.
In mei 2026 zal gestart worden met de bouw van deze prachtige levensloopbestendige appartementen op een ideale locatie midden in ‘Pey’ (Gemeente Echt-Susteren).
Het complex bestaat uit 4 appartementen ( 2 gelijkvloers en 2 op de 1e verdieping) met een eigen berging en parkeerplaats en een gezamenlijke fietsenstalling.
Voor meer info kunt u ons bellen of mailen op: 046-4007533 of info@kent-makelaars.nl
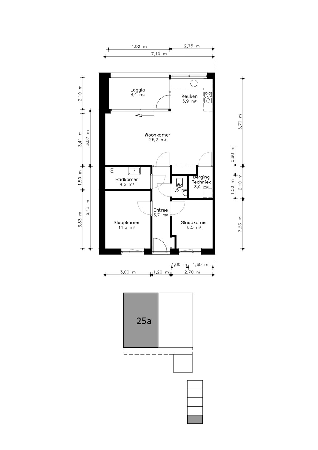
Hier kunt u ook de plattegronden bekijken!
Indeling
2 gelijkvloers appartementen (huisnummer 25 en 27 op de plattegronden weergegeven als nr 25 en 25a):
Indeling:
Hal/entree welke toegang geeft tot de meterkast, toilet met fonteintje, 2 slaapkamers en de badkamer voorzien van douche en wastafel.
Technische ruimte met witgoedaansluitingen.
Woonkamer met open keuken. Via woonkamer te bereiken loggia.
Buitenterrein:
Eigen berging, privé parkeerplaats
Bijzonderheden
Oplevering: voorjaar 2027;
Levensloopbestendig;
In de directe nabijheid van diverse winkelvoorzieningen gelegen;
2 slaapkamers;
Liftinstallatie;
Buitenberging en gezamenlijke fietsenstalling;
Eigen parkeerplaats op het achter terrein;
Zonnepanelen en vloerverwarming aanwezig;
Hoogwaardige kwaliteit en afwerking.
De VvE is in oprichting. De bijbehorende documenten waaronder de splitsingsakte zal nog volgen.
Deze verkoopinformatie is met de nodige zorgvuldigheid samengesteld. Hierbij zijn wij deels afhankelijk van informatie die wij van derden ontvangen. Aan onjuistheden en/of onvolkomenheden kunt u echter geen rechten ontlenen. Indien bepaalde informatie voor u van wezenlijk belang is dan adviseren wij u deze op juistheid te controleren. Onzerzijds wordt geen aansprakelijkheid aanvaardt voor enige onvolledigheid, onjuistheid of anderszins, dan wel de gevolgen daarvan.
Koper is te allen tijde gerechtigd voor eigen rekening een bouwkundige keuring te (laten) verrichten dan wel andere adviseurs te raadplegen teneinde een goed inzicht te verkrijgen over de staat van onderhoud.