Beschrijving
Heerlijk rustig wonen maar toch alle voorzieningen snel bereikbaar? Kom dan zeker kijken bij deze twee-onder-een-kapwoning. De woning biedt o.a. 3 slaapkamers, een lichte woonkamer met open verbinding naar de keuken en een tuin met veel privacy.
De ligging is centraal t.o.v. scholen, sportvoorzieningen en voor het doen van de dagelijkse boodschappen.
Ook de belangrijkste uitvalswegen zijn snel toegankelijk.
Indeling
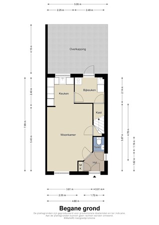
Begane grond:
Entree/hal met meterkast en modern toilet met fonteintje.
Lichte woonkamer met een open verbinding naar de keuken.
De nette keuken is voorzien van de volgende inbouwapparatuur: inductiekookplaat, afzuigkap, oven en een vaatwasser.
Bijkeuken met eenvoudig keukenblok. Ook bevindt zich hier de aansluiting voor de wasmachine/wasdroger. De gehele begane grond (m.u.v. het toilet en de bijkeuken is voorzien van een laminaatvloer.
Vanuit de bijkeuken is er toegang tot de tuin. In de tuin bevindt zich een sfeervolle overkapping.
De tuin is voorzien van een terras en gazon. Aan de achterzijde bevindt zich een separate (open) houten berging. De tuin is tevens toegankelijk middels een zijingang.
Aan de voorzijde bevindt zich de oprit welke plaats biedt voor 2 auto's.
1e verdieping:
Overloop, 3 slaapkamers en de badkamer.
De moderne badkamer is voorzien van een douchecabine en een wastafel met opbergmeubel.
De gehele 1e verdieping is (met uitzondering van de badkamer) voorzien van een laminaatvloer.
2e verdieping:
Middels een vlizotrap is de praktische bergzolder bereikbaar. De zolder is voorzien van een dakraam. Hier bevindt zich tevens de opstelplaats van de Cv-installatie.
Bijzonderheden
Heerlijk rustig wonen maar toch dicht in de buurt bij alle dagelijkse voorzieningen;
Voorzien van energielabel B;
Voorzien van houten kozijnen met dubbel glas;
De woning is deels voorzien van rolluiken;
Cv installatie: Vaillant / 2024 / eigendom.
Deze verkoopinformatie is met de nodige zorgvuldigheid samengesteld. Hierbij zijn wij deels afhankelijk van informatie die wij van derden ontvangen. Aan onjuistheden en/of onvolkomenheden kunt u echter geen rechten ontlenen. Indien bepaalde informatie voor u van wezenlijk belang is dan adviseren wij u deze op juistheid te controleren. Onzerzijds wordt geen aansprakelijkheid aanvaardt voor enige onvolledigheid, onjuistheid of anderszins, dan wel de gevolgen daarvan.
Koper is te allen tijde gerechtigd voor eigen rekening een bouwkundige keuring te (laten) verrichten dan wel andere adviseurs te raadplegen teneinde een goed inzicht te verkrijgen over de staat van onderhoud.