Beschrijving
De biedingstermijn voor deze woning sluit op dinsdag 7 april om 16.00 uur.
Door de grote vraag kunnen voor deze woning geen nieuwe bezichtigingen meer ingepland worden.
Indien u wilt dat wij uw gegevens op de reservelijst plaatsen, kunt u een mail sturen naar: info@kent-makelaars.nl
Op een centrale locatie in ‘Overhoven’ is deze leuke, verrassend ruime tussenwoning gelegen.
De woning is met o.a. 4 slaapkamers, een lichte woonkamer met moderne open keuken en een omsloten tuin de ideale gezinswoning.
Alle dagelijkse voorzieningen zoals winkels, scholen, kinderopvang en sportfaciliteiten zijn snel toegankelijk. Ook de directe uitvalswegen zijn binnen 5 minuten bereikbaar.
Indeling
Souterrain:
Praktische provisiekelder.
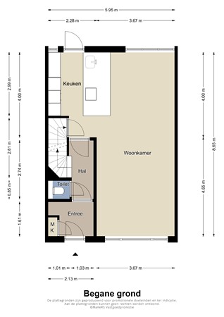
Begane grond:
Entree/tochtportaal, meterkast.
Hal, toilet, sfeervolle en lichte woonkamer (voorzien van een airco-unit) met open keuken.
De moderne keuken (2023) is voorzien van een kookeiland en uitgerust met de volgende inbouwapparatuur: inductiekookplaat, afzuigkap, vaatwasser, oven, koelkast en diepvries.
Tuin:
De omsloten achtertuin is volledig betegeld. Aan de achterzijde bevindt zich de garage en een separate stenen berging. Ook is de tuin toegankelijk middels een achterom.
Eerste verdieping:
Overloop, 3 slaapkamers (1 kamer is voorzien van een inbouwkast) en de badkamer.
De moderne badkamer (2023) is voorzien van: een inloopdouche, wastafel met opbergmeubel en een toilet.
Tweede verdieping:
De tweede verdieping is bereikbaar middels een vaste trap. De zolder is praktisch ingedeeld met o.a. een 4e slaapkamer (met dakkapel 2025), wasruimte, berging en een multifunctionele ruimte die bijvoorbeeld als kantoor of extra bergruimte kan dienen.
Bijzonderheden
Centrale ligging;
Energielabel B;
Volledig gasloos;
Voorzien van kunststof kozijnen met HR ++ glas;
Voorzien van 12 zonnepanelen / Zonneplan / 2023 /eigendom;
Dak-en vloerisolatie;
Elektrische boiler op zolder (150 liter) en in de keuken (15 liter) / eigendom / Tesy / 2023;
Elektrische vloerverwarming op de badkamer;
Airco op de begane grond (2023) en de 1e verdieping (2024) / TCL;
De volledige elektra is in 2023 vernieuwd.
Deze verkoopinformatie is met de nodige zorgvuldigheid samengesteld. Hierbij zijn wij deels afhankelijk van informatie die wij van derden ontvangen. Aan onjuistheden en/of onvolkomenheden kunt u echter geen rechten ontlenen. Indien bepaalde informatie voor u van wezenlijk belang is dan adviseren wij u deze op juistheid te controleren. Onzerzijds wordt geen aansprakelijkheid aanvaardt voor enige onvolledigheid, onjuistheid of anderszins, dan wel de gevolgen daarvan.
Koper is te allen tijde gerechtigd voor eigen rekening een bouwkundige keuring te (laten) verrichten dan wel andere adviseurs te raadplegen teneinde een goed inzicht te verkrijgen over de staat van onderhoud.