Beschrijving
In de gezellige wijk ‘Overhoven’ is deze hoekwoning gelegen. Ideaal geschikt voor starters alsook senioren gezien de aanwezigheid van een slaapkamer en badkamer op de begane grond. Met in totaal 4 mogelijk 5 slaapkamers is deze woning verrassend ruim te noemen. Daarnaast beschikt de woning o.a. over een ruime keuken en een onderhoudsvrije omsloten tuin.
In de directe omgeving liggen een school, diverse sportfaciliteiten en het centrum is op fietsafstand bereikbaar. Je woont hier rustig, maar met alle dagelijkse voorzieningen binnen handbereik.
Indeling
Souterrain:
Praktische provisiekelder.
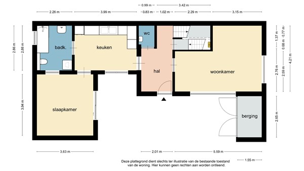
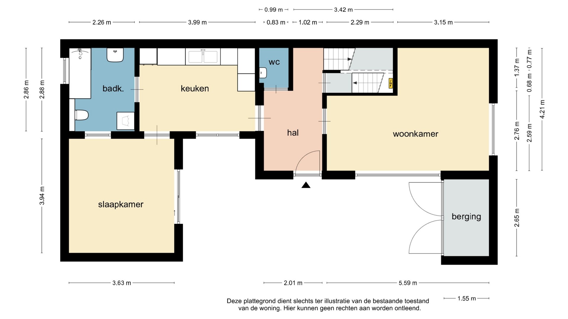
Begane grond:
Hal, toilet en toegang tot woon/eetkamer aan de ene zijde en de keuken aan de andere zijde. De woning beschikt over een lichte woonkamer. De keuken is voorzien van de volgende inbouwapparatuur: koelkast, gasfornuis, vaatwasser, combi-oven, en een afzuigkap.
Volledig betegelde badkamer welke voorzien is van een ligbad met douchecombinatie, wastafel met opbergmeubel en een toilet. De aansluitingen voor de wasmachine/wasdroger alsmede de cv-installatie bevinden zich hier.
Tuin:
De onderhoudsvrije tuin is volledig beklinkerd. In de tuin bevindt zich een separate houten berging.
1e verdieping:
Overloop, drie slaapkamers (waarvan 1 met inbouwkast).
2e verdieping:
Middels een vaste trap is de 2e verdieping bereikbaar.
Deze kamer kan naar eigen wens ingedeeld worden bv. als extra slaap en/of werkkamer.
Bijzonderheden
Centrale ligging;
Cv-installatie: eigendom / Remeha / 2015;
De woning is grotendeels voorzien van rolluiken;
De woning is voorzien van houten kozijnen met dubbel glas.
Deze verkoopinformatie is met de nodige zorgvuldigheid samengesteld. Hierbij zijn wij deels afhankelijk van informatie die wij van derden ontvangen. Aan onjuistheden en/of onvolkomenheden kunt u echter geen rechten ontlenen. Indien bepaalde informatie voor u van wezenlijk belang is dan adviseren wij u deze op juistheid te controleren. Onzerzijds wordt geen aansprakelijkheid aanvaardt voor enige onvolledigheid, onjuistheid of anderszins, dan wel de gevolgen daarvan.
Koper is te allen tijde gerechtigd voor eigen rekening een bouwkundige keuring te (laten) verrichten dan wel andere adviseurs te raadplegen teneinde een goed inzicht te verkrijgen over de staat van onderhoud.