Beschrijving
Op een ideale locatie in Sittard is deze instapklare hoekwoning gelegen. De ruim opgezette, goed onderhouden woning beschikt o.a. over 4 slaapkamers, een serre en een vrijstaande stenen garage met sectionaalpoort.
Het centrum, openbaar vervoer, scholen en sportvoorzieningen zijn allen op loop/fietsafstand bereikbaar.
Indeling
Souterrain: Provisiekelder
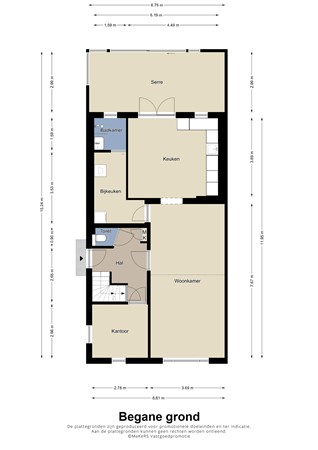
Begane grond: Hal/entree met meterkast en modern toilet. Aan de voorzijde is een kantoorruimte gelegen. Vanuit de hal bereikt u de sfeervolle lichte woonkamer.
Bijkeuken/wasruimte voorzien van inloopdouche. Het aansluitpunt voor de wasmachine is hier gesitueerd.
Semi-gesloten leefkeuken welke voorzien is van diverse inbouwapparatuur, te weten: (combi) oven, inductiekookplaat, afzuigkap, koelkast en een vaatwasser. In de keuken bevindt zich een airco-unit die zowel verwarmt als koelt. Vanuit de keuken is middels openslaande deuren de serre toegankelijk. De serre is smaakvol ingericht en door de schuifdeuren is er optimaal tuincontact. In de serre is een airco. Deze koelt alleen.
De tuin is netjes aangelegd en op het Zuidoosten gelegen. In de tuin bevindt zich een border met beplanting.
Vanuit de tuin is er toegang tot de ruime garage. De garage is voorzien van een sectionaalpoort en aan de voorzijde is een oprit gelegen.
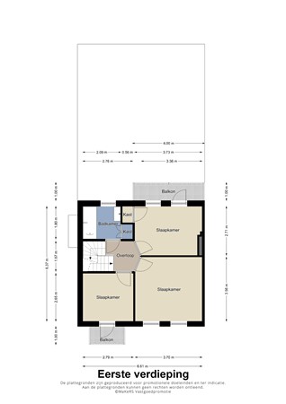
1e Verdieping: Overloop met toegang tot 3 slaapkamers en de badkamer. 2 slaapkamers hebben toegang tot een balkon. De volledig betegelde badkamer biedt het comfort van een ligbad (v.v. een glazen douchewand), een wastafel en een muurkast. In de gang hangt een airco, deze koelt alleen.
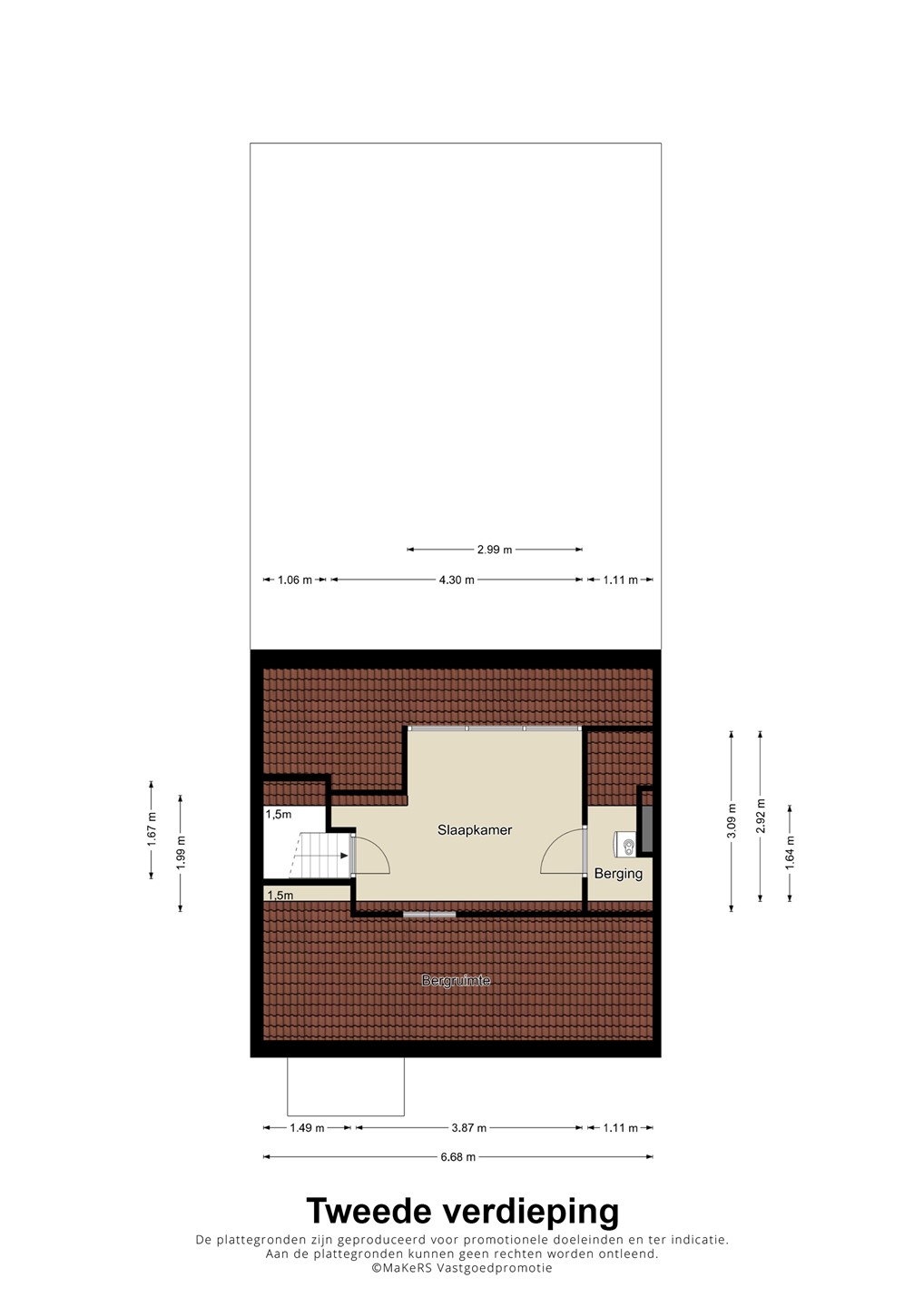
2e verdieping: Middels een vaste trap is er toegang tot de zolder welke voorzien is van een dakkapel. In een separate berging bevindt zich de opstelplaats voor de cv-installatie. Tevens zijn er enkele bergruimtes.
Bijzonderheden
Instapklare woning;
Voorzien van kunststof kozijnen met dubbel glas (HR++); Voorzien van rolluiken;
CV- installatie: Remeha Avanta Ace 35C CW5 / 32 kw / 2022 / eigendom;
Airco’s (serre/gang boven): Carrier / 2009 / eigendom;
Airco (keuken): Midea / 2025 / eigendom.
Beschikt over 16 zonnepanelen: Jinko / 2019 / eigendom;
Voorzien van Visonic alarmsysteem / eigendom.
Deze verkoopinformatie is met de nodige zorgvuldigheid samengesteld. Hierbij zijn wij deels afhankelijk van informatie die wij van derden ontvangen. Aan onjuistheden en/of onvolkomenheden kunt u echter geen rechten ontlenen. Indien bepaalde informatie voor u van wezenlijk belang is dan adviseren wij u deze op juistheid te controleren. Onzerzijds wordt geen aansprakelijkheid aanvaardt voor enige onvolledigheid, onjuistheid of anderszins, dan wel de gevolgen daarvan.
Koper is te allen tijde gerechtigd voor eigen rekening een bouwkundige keuring te (laten) verrichten dan wel andere adviseurs te raadplegen teneinde een goed inzicht te verkrijgen over de staat van onderhoud.