Beschrijving
Aan de rand van Susteren is deze zeer royale halfvrijstaande woning gelegen. Door de jaren heen is de woning gerenoveerd en gemoderniseerd geworden met behoud van diverse karakteristieke elementen waaronder de getoogde ramen aan de voorzijde, decoratieve gevelrand, houten trappartij en de hoge plafonds, Met o.a. 4 ruime slaapkamers, 2 badkamers en een heerlijke tuin inclusief zwembad is dit DE ideale gezinswoning.
De woning is gelegen aan de rand van Susteren. Binnen enkele minuten zijn diverse dagelijkse voorzieningen bereikbaar zoals het centrum met een groot aanbod aan winkels, de basisschool, en meerdere sportverenigingen. Ook de directe uitvalswegen zijn binnen 5 minuten toegankelijk.
Indeling
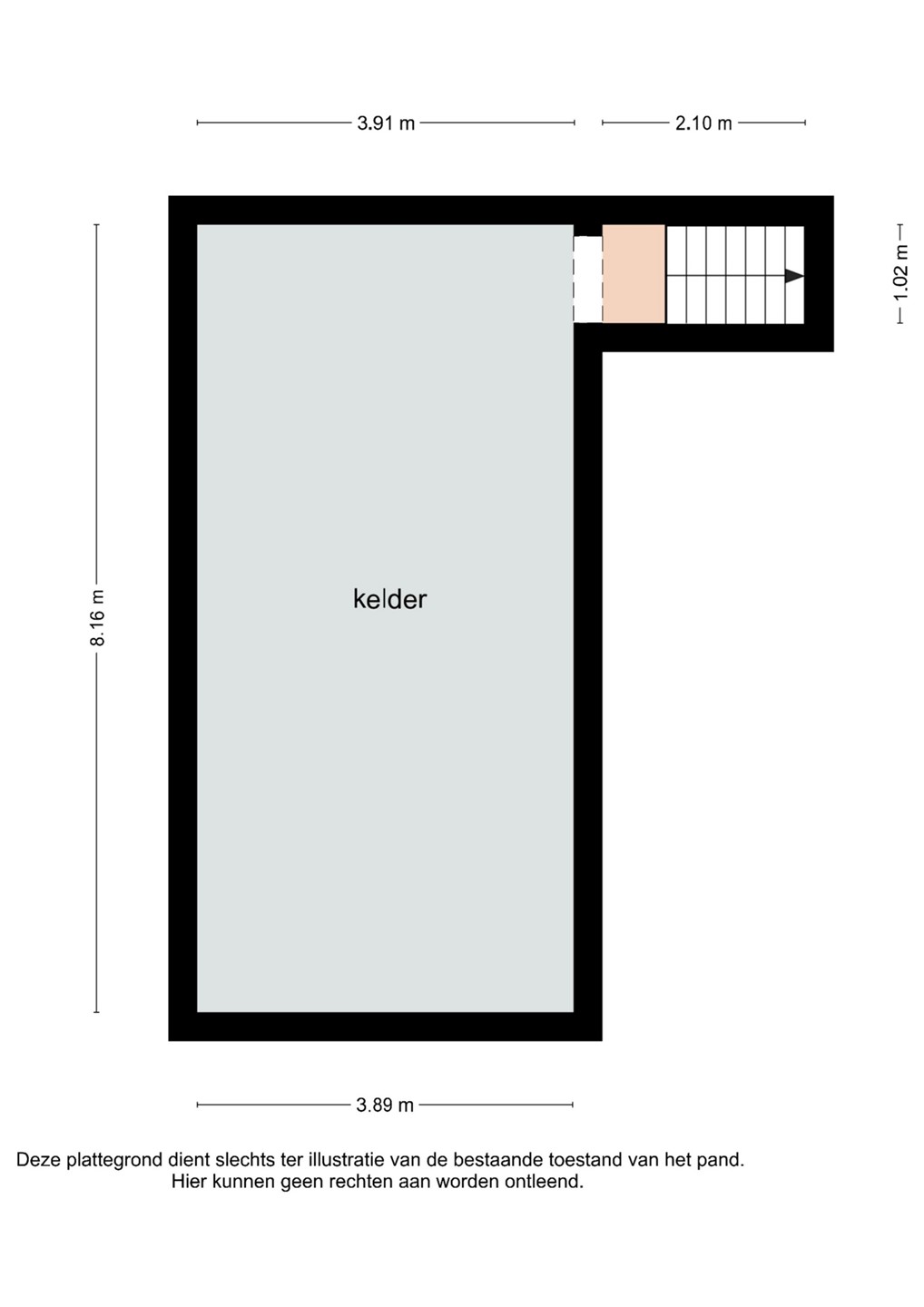
Souterrain:
Ruime provisiekelder
Begane grond:
Ruime hal/entree, meterkast. De hal is voorzien van klassieke binnendeuren met glas. Dit zorgt voor een open verbinding van de ruimtes. De rechter kamer is momenteel in gebruik als multifunctionele ruimte. Dit is een zeer sfeervolle ruimte voorzien van een doorkijkhaard en een gezellige zithoek aan de voorzijde in de erker. Aan de linkerzijde bevindt zich de woonkamer met een open haard.
Tussenportaal met toilet.
De keuken die in verbinding staat met de tuinkamer is voorzien van de volgende inbouwapparatuur: gootsteen met dubbele spoelbak, koelkast, inductiekookplaat, afzuigkap en een vaatwasser.
In het verlengde van de keuken bevindt zich de sfeervolle tuinkamer met openslaande deuren naar de heerlijke tuin. Door de aanwezigheid van de grote raampartijen is deze ruimte voorzien van veel lichtinval. Vanuit de tuinkamer is de bijkeuken/ witgoedruimte bereikbaar.
De gehele begane grond is voorzien van een tegelvloer met vloerverwarming.
Tuin:
De tuin is volledig betegeld en voorzien van een terras. Eyecatcher is het heerlijke zwembad om lekker de verkoeling op te kunnen zoeken in de zomermaanden.
Aan de zijkant van de woning bevindt zich de ruime garage met voorgelegen oprit.
In de garage bevindt zich tevens de technische ruimte voor het zwembad alsmede extra bergruimte.
Eerste verdieping:
Brede overloop, 3 slaapkamers (waarvan 1 met balkon aan de voorzijde) en de badkamer.
De ruime badkamer is voorzien van een hoekbad, 2 wastafels met opbergruimte, toilet en een bidet.
De gehele verdieping is voorzien van een mooie laminaatvloer.
Tweede verdieping:
Middels een vaste trap is de ruime zolder bereikbaar.
Deze is opgedeeld in een overloop, cv-ruimte, een zeer riante 4e slaapkamer en een badkamer met douche, wastafel en toilet.
Bijzonderheden
Zeer centrale ligging t.o.v. alle dagelijkse voorzieningen en uitvalswegen;
Voorzien van houten kozijnen met HR ++ glas;
Cv-installatie: Remeha / eigendom;
De gehele begane grond en de badkamer op de 1e verdieping zijn voorzien van vloerverwarming;
De woning beschikt over 40 zonnepanelen / eigendom;
Op de tweede verdieping bevindt zich een airco-unit / 2022.
Deze verkoopinformatie is met de nodige zorgvuldigheid samengesteld. Hierbij zijn wij deels afhankelijk van informatie die wij van derden ontvangen. Aan onjuistheden en/of onvolkomenheden kunt u echter geen rechten ontlenen. Indien bepaalde informatie voor u van wezenlijk belang is dan adviseren wij u deze op juistheid te controleren. Onzerzijds wordt geen aansprakelijkheid aanvaardt voor enige onvolledigheid, onjuistheid of anderszins, dan wel de gevolgen daarvan.
Koper is te allen tijde gerechtigd voor eigen rekening een bouwkundige keuring te (laten) verrichten dan wel andere adviseurs te raadplegen teneinde een goed inzicht te verkrijgen over de staat van onderhoud.